URBAN ASCENT

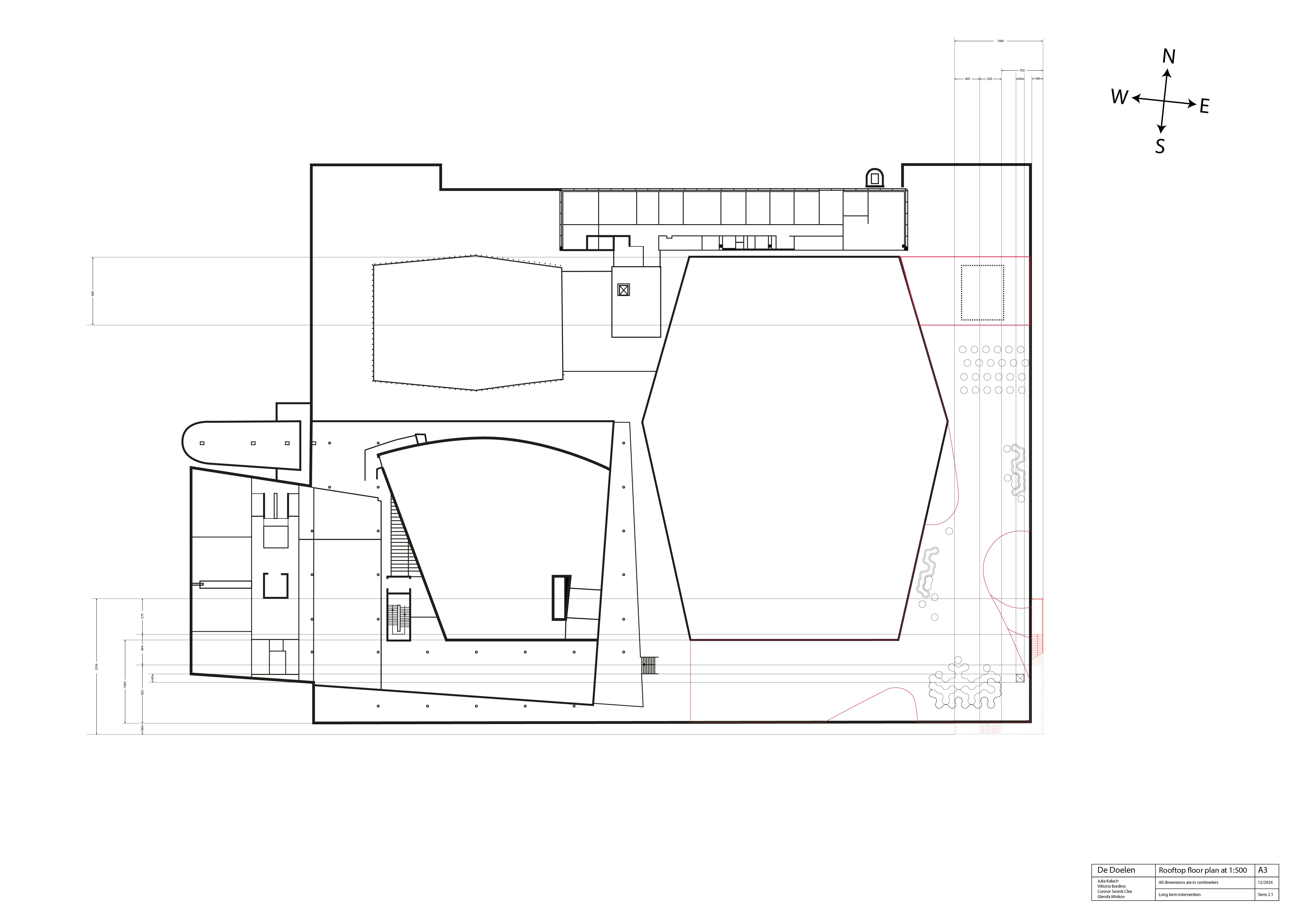
This project reimagines De Doelen in Rotterdam by introducing an architectural intervention that connects the interior to the exterior and enhances the building’s role as a cultural and sustainable landmark. A dynamic tunnel bridges the urban landscape to a new rooftop garden, transforming the building into a vibrant and eco-conscious hub. The garden not only improves air quality and reduces energy consumption through natural insulation but also manages stormwater efficiently and boosts biodiversity. Financially, it adds value to the building, attracting a younger, eco-conscious audience and creating opportunities for revenue through outdoor events.


The bold use of red contrasts with the building’s monotone palette, creating a striking visual impact that draws attention and invites engagement. A central staircase offers functional access and an immersive experience as visitors ascend to the garden, while an elevator ensures accessibility for all. This intervention fosters a stronger connection between the building and its users, creating an inclusive, sustainable, and engaging space.



